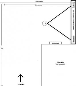
Ey chicosss!! que tal!!!! os comento mi situacion, quiero acondicionarme la habitacion para mezclar, no para grabar, asi que me he dibujado un esquemita con medidas muy aproximadas, para ver que me aconsejais, en cuanto a la posicion del escritorio y los monitores, y una vez decidamos eso, saber que tipo de material-acustico me recomendais y donde colocarlo.En cuanto a la posicion del escritorio en lo que a mi respecta me da igual cualquiera de las dos opciones que os doy, pero en cuanto al material acustico, necesitaria que pudiera quitarlo y ponerlo sin ningun problema, por si algun dia decido cambiarme de casa poder llevarmelo sin destrozar la pared ni el material acustico, ademas intentar que sea lo mas estetico posible.
Como la habitacion tampoco es excesivamente grande, espero tener de sobra con 300€, gracias de antemano a todos.
a)Ubicacion correcta del escritorio y monitores de mezcla
b) Material acustico necesario, y donde cololarlo, en funcion a la ubicacion del escritorio!!
gracias de nuevo!!!!
Como la habitacion tampoco es excesivamente grande, espero tener de sobra con 300€, gracias de antemano a todos.
a)Ubicacion correcta del escritorio y monitores de mezcla
b) Material acustico necesario, y donde cololarlo, en funcion a la ubicacion del escritorio!!
gracias de nuevo!!!!
Responder
Citar
