Hola hispasónicos! Ando un poco bloqueado, por no decir muuuucho, con el diseño del estudio. He estado ojeando los foros y las fotos de los estudios para inspirarme y nada. He leido que las salas no pueden ser simetricas y que hay que cuidar los angulos... pero con el espacio del que dispongo no se me ocurre un diseño adecuado.
Os comento el caso:
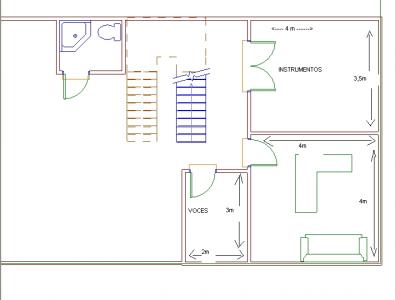
Dispongo de una planta baja y entresuelo donde me quiero hacer un estudio, concretamente estará situado en el entresuelo que está todo sin paredes. Adjunto el disño que he hecho tras muchas horas dándole vueltas, pero aún así no me convence, por que me sale la sala de control cuadrada (4m x 4m) y he leido que no deben tener las mismas proporciones las paredes.
A ver si alguien me puede echar una mano con el diseño y aconsejarme. Por cierto en la pared del edificio que da a la calle es la que esta abajo en el plano, hay una ventana de media luna, por lo que la descarté para hacer ahí la sala de instrumentos.
Otra de mis dudas es los tamaños de las salas, ¿la sala de control es mejor que sea mas grande que la de grabación de instrumentos o menor?
Cualquier comentario será muy bienvenido!! Gracias!!
Juan.
Os comento el caso:
Dispongo de una planta baja y entresuelo donde me quiero hacer un estudio, concretamente estará situado en el entresuelo que está todo sin paredes. Adjunto el disño que he hecho tras muchas horas dándole vueltas, pero aún así no me convence, por que me sale la sala de control cuadrada (4m x 4m) y he leido que no deben tener las mismas proporciones las paredes.
A ver si alguien me puede echar una mano con el diseño y aconsejarme. Por cierto en la pared del edificio que da a la calle es la que esta abajo en el plano, hay una ventana de media luna, por lo que la descarté para hacer ahí la sala de instrumentos.Otra de mis dudas es los tamaños de las salas, ¿la sala de control es mejor que sea mas grande que la de grabación de instrumentos o menor?
Cualquier comentario será muy bienvenido!! Gracias!!
Juan.
Responder
Citar
