#24 y #25 gracias por vuestra valiosa info, efectivamente tendré que ampliarla y evitar paralelismos, y efectivamente también propongo que centremos el foro en lo que atañe a hispasonic, es decir la acústica, gracias
¿Cómo se acondiciona una cueva para un estudio?
OFERTAS Ver todas
-
-13%Kawai ES-60
-
-31%Behringer X-Touch Compact
-
Novation FLkey Mini
▶
1 respuesta directa
Eso es un obrón, pero desde luego no presenta paralelismos.
Tampoco pasa mucho por corregir los problemas de salas en forma de paralepípedo tradicional, si no tienen malas dimensiones y no tienen problemas de materiales que potencien estacionadas o flutter, un acondicionamiento mediano las suele dejar útiles.
Luego, un diseño paradigmático puede ser imperfecto, por errores de cálculo (que no deberían existir) o de ejecución.
Incluir un diseño de este tipo en el espacio que antes albergaba un cueva me parece costoso de realizar, sobre todo de desescombro, según la composición del terreno, a parte de los posibles refuerzos estructurales que haya que hacer y las supervisiones o permisos.
Si hay presupuesto y buen proyecto a lo mejor se pueden lograr cosas buenas, desde luego no muy aptas para claustrofóbicos y no muy en línea con estar en contacto con paisajes circundantes con abundante luz natural.
Eso sí, ideales para estar grabando en medio un ataque preventivo de la URSS.
Tampoco pasa mucho por corregir los problemas de salas en forma de paralepípedo tradicional, si no tienen malas dimensiones y no tienen problemas de materiales que potencien estacionadas o flutter, un acondicionamiento mediano las suele dejar útiles.
Luego, un diseño paradigmático puede ser imperfecto, por errores de cálculo (que no deberían existir) o de ejecución.
Incluir un diseño de este tipo en el espacio que antes albergaba un cueva me parece costoso de realizar, sobre todo de desescombro, según la composición del terreno, a parte de los posibles refuerzos estructurales que haya que hacer y las supervisiones o permisos.
Si hay presupuesto y buen proyecto a lo mejor se pueden lograr cosas buenas, desde luego no muy aptas para claustrofóbicos y no muy en línea con estar en contacto con paisajes circundantes con abundante luz natural.
Eso sí, ideales para estar grabando en medio un ataque preventivo de la URSS.
▶
1 respuesta directa
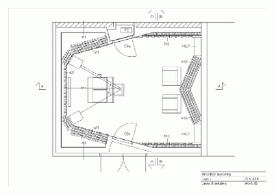
#33 Las fotos que he puesto en #32 son a modo de ejemplo para saber si con algo parecido se evitan paralelismos, Bios me libre de tener que excavar una cosa así :s creo que para empezar lo único que voy a hacer es convertir los dos habitáculos del fondo en uno y acondicionarlo con materiales absorbentes, espero que sea suficiente para comenzar a trabajar, y con tiempo, dinero, preguntando e investigando ya lo optimizaré a «modo profesional». Por cierto, con buena iluminación es un gustazo trabajar dentro de una cueva en agosto a las 3 de la tarde, viene con temperatura de serie de unos 18-22 grados todo el año
Nuevo post
Regístrate o identifícate para poder postear en este hilo
