Hola amigos, llevo ya unas semanas leyendo y leyendo acerca de materiales y demás para llevar a cabo un estudio de obra nueva adyacente a mi nueva casa y ahora que lo tengo bastante claro creo que es momento de empezar un post.
Mi consulta se centra fundamentalmente en el diseño de ingeniería acústica de las salas, tanto de la sala de control como del estudio. Ya que es obra nueva me gustaría diseñar la acústica de la mejor forma posible pero reconozco que me pierdo en cuanto hay que aplicar conocimientos puros de ingeniería.
Aquí va la información útil para quien me quiera/pueda echar una mano:
Ubicación: Estudio anexo a casa unifamiliar situada en parcela de 1700m2 donde la construcción del vecino más cercano se encuentra a unos 15 metros. La urbanización es tranquila y no existe bullicio urbano. Tan solo los perros ladrando de vez en cuando y los pájaros y urracas (¡malditas!) en primavera y verano.
- 50m2 diáfanos para Control, Estudio, Sala de máquinas y Wc. Peque pero cuco.
- La parte más baja tiene 2,91m de altura y la más alta 3,26m.
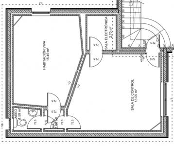
Adjunto los planos orientativos que he hecho “a ojo” porque esa es la distribución que pienso que mejor se amolda a la casa pero es la forma y tratamiento acústico (no insonorización) de las salas para lo que pido ayuda, me gustaría tener “ecualizado” el control y muy bien tratado el estudio para poder variar su acústica usando cortinas y biombos pero con una “room” agradable.
En los planos aparecen paredes paralelas a las que, obviamente, se les rompería el paralelismo.
Ya sé que hay empresas especializadas a las que puedo pedir un proyecto pero es que ando superpelao de presupuesto. Además de que me lo voy a hacer yo con la ayuda de una persona contratada y la inestimable info que ya existe aquí y en todo Internet.
Eso si, estoy dispuesto a hacer “trueque” de servicios una vez esté acabado el proyecto. Y, sinceramente, creo que va a quedar acojonante y puede merecer mucho la pena.
El equipamiento principal proyectado para el estudio es el siguiente:
Fairlight Xynergi + 2 bahías Xe6 + Fairlight SX20 + Fairlight CC1 + SSL Alphalink Madi SX sobre HPz800
Black Lion Audio Micro clock MKII
Monitorado 5.1
3x Focal Twin6 Be
2x Dynaudio BM 6A (idealmente 2 Solo6 Be pero es que ya tengo los Dynaudio)
1x Focal Sub6
Focusrite ISA828
SPL Frontliner
TLAudio Ebony A2
TC Electronic M2000 (con posible upgrade a Bricasti Design M7)
Y el mobiliario, aunque no inicialmente, será parecido al de la foto.
También habrá un sofá en el control al que se le podría tunear el tapizado y estructura para convertirlo en un elemento absorvente.
En cuanto a materiales estoy abierto y prefiero no escatimar en detalles que luego no pueda solucionar pero me gustaría que el control quedase, como su nombre indica, MUY controladito.
Así que nada más, y perdonad si el tocho se ha hecho largo...
Gracias
Mi consulta se centra fundamentalmente en el diseño de ingeniería acústica de las salas, tanto de la sala de control como del estudio. Ya que es obra nueva me gustaría diseñar la acústica de la mejor forma posible pero reconozco que me pierdo en cuanto hay que aplicar conocimientos puros de ingeniería.
Aquí va la información útil para quien me quiera/pueda echar una mano:
Ubicación: Estudio anexo a casa unifamiliar situada en parcela de 1700m2 donde la construcción del vecino más cercano se encuentra a unos 15 metros. La urbanización es tranquila y no existe bullicio urbano. Tan solo los perros ladrando de vez en cuando y los pájaros y urracas (¡malditas!) en primavera y verano.
- 50m2 diáfanos para Control, Estudio, Sala de máquinas y Wc. Peque pero cuco.
- La parte más baja tiene 2,91m de altura y la más alta 3,26m.
Adjunto los planos orientativos que he hecho “a ojo” porque esa es la distribución que pienso que mejor se amolda a la casa pero es la forma y tratamiento acústico (no insonorización) de las salas para lo que pido ayuda, me gustaría tener “ecualizado” el control y muy bien tratado el estudio para poder variar su acústica usando cortinas y biombos pero con una “room” agradable.
En los planos aparecen paredes paralelas a las que, obviamente, se les rompería el paralelismo.
Ya sé que hay empresas especializadas a las que puedo pedir un proyecto pero es que ando superpelao de presupuesto. Además de que me lo voy a hacer yo con la ayuda de una persona contratada y la inestimable info que ya existe aquí y en todo Internet.
Eso si, estoy dispuesto a hacer “trueque” de servicios una vez esté acabado el proyecto. Y, sinceramente, creo que va a quedar acojonante y puede merecer mucho la pena.
El equipamiento principal proyectado para el estudio es el siguiente:
Fairlight Xynergi + 2 bahías Xe6 + Fairlight SX20 + Fairlight CC1 + SSL Alphalink Madi SX sobre HPz800
Black Lion Audio Micro clock MKII
Monitorado 5.1
3x Focal Twin6 Be
2x Dynaudio BM 6A (idealmente 2 Solo6 Be pero es que ya tengo los Dynaudio)
1x Focal Sub6
Focusrite ISA828
SPL Frontliner
TLAudio Ebony A2
TC Electronic M2000 (con posible upgrade a Bricasti Design M7)
Y el mobiliario, aunque no inicialmente, será parecido al de la foto.
También habrá un sofá en el control al que se le podría tunear el tapizado y estructura para convertirlo en un elemento absorvente.
En cuanto a materiales estoy abierto y prefiero no escatimar en detalles que luego no pueda solucionar pero me gustaría que el control quedase, como su nombre indica, MUY controladito.
Así que nada más, y perdonad si el tocho se ha hecho largo...
Gracias
Responder
Citar
