Nuevo estudio. Reparto de espacio para este local

  • 1
Jose Moreno
por el 13/01/2011
Bueno compañeros, me uno al club de los que se van a quebrar la cabeza en dimensionar espacios, buscar aislantes y demás menesteres.

Os dejo un plano de mi local comercial. La puerta de corredera da a otra parte del local que se está usando para guardar un coche. Sólo dispongo en un principio del espacio que os he dibujado en el plano. A los lados hay locales adosados que se usan a modo de garajes (lo digo por el tema de las molestias de ruido), y desde el baño sale mucho sonido hacia el hueco de las escaleras del bloque.

Los techos son altos, bien altos, puedo acortar altura sin problemas.

Lo que trato es ver cómo podría repartir el espacio para la sala de control y la sala de grabación teniendo en cuenta donde está el baño.

En breve os subo otro plano con algunas posibilidades que he encontrado, mientras tanto, si alguien tiene a bien hacer alguna recomendación me será de gran ayuda.

Seguimos!! y muchas gracias.
Archivos adjuntos ( para descargar)
plano_limpio.jpg
OFERTAS EN TIENDAS Ver todas
  • -26%
    Moog Messenger
    699 €
    Ver oferta
  • -31%
    Behringer X-Touch Compact
    222 €
    Ver oferta
  • -9%
    Behringer DX626 B-Stock
    96 €
    Ver oferta
SEGUNDA MANO EN MERCASONIC Ver todo
  • Ecualizador de Mastering TFpro P9
    800 €
    Ver
  • Arturia Beatstep Pro
    180 €
    Ver
  • Analog Four Mk2 - Negra
    1.100 €
    Ver
¿Tienes equipo que ya no usas? Véndelo en Mercasonic
Jose Moreno
por el 13/01/2011
Aquí os dejo la primera opción que estoy barajando, pero no sé si esas dimensiones son demasiado reducidas...

Os agradecería mucho que me aconsejarais amigos.

Gracias
Archivos adjuntos ( para descargar)
plano_opcion1.jpg
Jose Moreno
por el 13/01/2011
De nuevo, muy buenas, yo sigo en espera de vuestra ayuda, algún consejito y tal, y mientras tanto me estoy empapando del contenido del foro de Acustica. Voy sacando cosas en claro pero me siguen quedando muchas dudas aún.

El tema del reparto del espacio no me convence, no sé si esas dimensiones son mínimamente aceptables para un espacio que no sea muy agobiante, pero el problema principal es donde se encuentra el baño y donde se encuentra la puerta de corredera que ya hay instaladas. Esa puerta puedo quitarla sin problemas.

Al ser un local comercial, no tengo debajo nada, y no sé hasta qué punto sería interesante flotar el suelo. Yo en este estudio, estando tal cual sin insonorizar, le he dado caña al equipo y escuchando desde el local lindante pasa poco sonido, practicamente nada.

En teoría cuando uno monta un estudio en plan... "bien" debe acondicionarlo para evitar la entrada y salida de sonido, pero realmente a efectos practicos habría que mirar si es necesario partirse los cuernos en esto cuando en realidad no sale tanto sonido ¿no es así?

En la pared que linda con el baño, donde está la columna grande, tengo un bar donde suena reaggeton constantemente, y por la noche cuando estoy grabando si que molesta, se me mete el sonido, pero de los locales laterales ni jota.

Mas o menos tengo claro que debo usar rieles con laca de roca y forrar con pladur, creo que este es el sistema que voy a usar, pero no he conseguido encontrar el precio de los rieles estos, al menos en lo que llevo leido del foro.

Otra opción que me ha comentado mi padre es usar planchas de las que se ponen en las camaras frigoríficas de camiones o naves. Vienen con un montaje muy facil, pero no sé si eso actuaria convenientemente como aislante acustico, no he encontrado datos de coeficientes ni nada.

Bueno, yo sigo a lo mio, perdonad el rollo, pero quiero meterle mano a esto cuanto antes, y sigo esperando vuestro consejo. Próximamente subiré fotos del local en su situación actual, y prometo hacer un reportaje grafico del proceso de construcción cuando lo inicie.

Saludos y abrazos.
Jose Moreno
por el 14/01/2011
Venga chicos, ¿nadie se anima? Echadme una mano compis
Rober
por el 19/01/2011
Me acoplo a este hilo y añado una pregunta:

Para el diseño de un estudio de grabación, ¿existen empresas especializadas que puedan realizar todos los pasos desde el local vacío hasta la finalización de la obra?

Quizá no sea del todo útil en este caso en particular, pero es algo que me interesa mucho ahora mismo.
Sidman
por el 24/01/2011
:comer:
Susound
por el 25/01/2011
hola muy buenaas1 somos una productora audiovisual y contamos con ingenieros acusticos y con obreros especializados en todo este tipo de proyectos.
te doy mi opinion por aqui ya que supongo que te urge bastante!

mi opinion es que sacrifiques metros de control y los añadas a la sala de grabacion si lo que quieres es hacer producciones muicales si solo son locuciones y doblejes, aprovecha los metros para la sala de control y haz tambien algo para visionados!

cualquier duda por privado!
espero haberte ayudado en algo un saludo!!
Jose Moreno
por el 24/06/2011
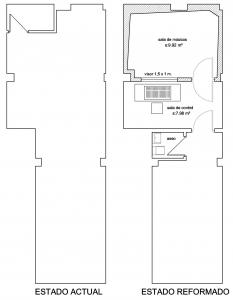
Bueno, después de unos meses tratando de buscar soluciones a algunos contratiempos que he tenido por fin comienza el reto de darle forma a mi estudio.

He replanteado desde el principio el espacio del local, y la solución más factible era tirar el cuarto de baño y hacerlo fuera del espacio disponible para la sala de grabación. Os subo un plano.

El primer obstáculo que me he encontrado es buscar la madre común para poder dar desague en la nueva ubicación del baño, y en esas estoy, os adjunto también fotos de cómo estaba el estudio antes de acometer la obra, y algunas más del proceso.

Prometo ir ilustrando todo lo que vaya haciendo por si a alguien le sirve.

Un saludo amigos
Archivos adjuntos ( para descargar)
ideARTE - plano.jpg
P6140005.JPG
P6140006.JPG
P6140009.JPG
P6230073.JPG
P6240077.JPG
P6230075.JPG
P6240078.JPG
P6240079.JPG
Jose Moreno
por el 25/06/2011
Buenas tardes, ya está puesto el inodoro, un pasito menos. El cambio de sitio del WC era lo que más me preocupaba para poder realizar el proyecto tal y como lo he planteado, pero la madre común estaba donde debía y ya he quitado otra cosa del medio. Siguiente paso tirar el baño actual.

Saludos.
Archivos adjuntos ( para descargar)
25062011025.jpg
25062011024.jpg
Jose Moreno
por el 04/07/2011
Baño anterior tirado, la que ha salido de escombro y polvo, ya está el local preparado para empezar a montar la estructura de las salas. La puerta del baño me la guardo para su nueva hubicación, la pintaré en un color coherente y listo. En alguna foto aparece también el altillo que había encima de ese cuarto. Ya os seguiré contando. Saludos
Archivos adjuntos ( para descargar)
02072011026.jpg
02072011028.jpg
02072011029.jpg
02072011032.jpg
03072011033.jpg
Jose Moreno
por el 26/07/2011
Buenas tardes, después de 3 semanas sin pasar por aquí debido al jaleo de la obra, la pintura, busqueda de materiales, lectura de manuales y de darle bien al coco para que todo vaya sobre ruedas, por fin puedo decir que la insonorización está terminada. Tendría mucho para escribir pero creo que mejor os subo las fotos, y ya iré comentando.

A partir de ahora tendré que buscar la forma de acondicionar acústicamente el espacio, así que ya os pediré ayuda.

Saludos.
Archivos adjuntos ( para descargar)
07072011038.jpg
07072011039.jpg
07072011040.jpg
07072011040.jpg
07072011043.jpg
07072011046.jpg
08072011050.jpg
08072011051.jpg
08072011052.jpg
08072011055.jpg
11072011056.jpg
11072011057.jpg
11072011058.jpg
12072011059.jpg
12072011060.jpg
12072011061.jpg
13072011062.jpg
13072011066.jpg
13072011067.jpg
14072011068.jpg
14072011071.jpg
14072011072.jpg
14072011073.jpg
14072011076.jpg
14072011077.jpg
14072011078.jpg
16072011082.jpg
16072011083.jpg
16072011085.jpg
26072011086.jpg
26072011087.jpg
26072011088.jpg
26072011089.jpg
26072011090.jpg
26072011091.jpg
26072011092.jpg
26072011093.jpg
26072011095.jpg
26072011096.jpg
Jitter
por el 26/07/2011
Copón que calité!! he estado siguiendo el post y me habeis dejao pasao cuando lo he visto actualizao!!
Si os aburris o teneis gana de montar otro el mio esta en proceso, jajaja
Que maquinas!! Suerte
danceplanet
por el 27/07/2011
Felicidades y que bien esta quedando... Maquinas, que soys unos Maquinas
Para cuando pruebecitas de audio... ?

Felicidades de nuevo :campeon:
Jose Moreno
por el 27/07/2011
Pues hoy he terminado la instalación electrica y he empezado a colocar la tarima, según mi previsión entre mañana y pasado podré montar el escritorio y el equipo, pero ahora viene la parte que me da más yuyu, colocar absorventes y demás movida.

A ver cuando puedo colgar algún video.

Un abrazo y gracias.
Jose Moreno
por el 29/07/2011
Buenos días, a ver si hoy me dejo puesta la tarima de la sala de control. Os dejo algunas fotos de cómo queda la instalación eléctrica vista con tubo pvc (que luego pintaré cuando pueda). Ha sido la opción más rápida aunque menos vistosa ya que preferí no encastrar nada en los trasdosados.

A currar, saludos.
Archivos adjuntos ( para descargar)
P7280072.JPG
P7280079.JPG
P7280080.JPG
P7280083.JPG
P7280085.JPG
P7280073.JPG
Nuevo post

Regístrate o para poder postear en este hilo

Música
Temas