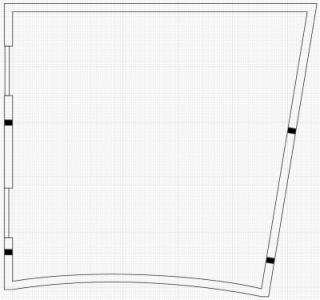
Hola a todos ..... Soy nuevo aquí en hispa Sonic .... Tengo un pequeño asunto entre manos y me gustaría que me dieran su opinión o sugerencias ... construí una pieza anexa a mi casa y por cuestiones de ubicación me salio con unas dimensiones un tanto curiosas (aqui les adjunto la foto del plano "cada línea equivale a un metro")... ahí es donde quiero hacer mi home estudio, amigos que saben de estos temas me cuentan que necesito un control rom y una cabina de grabación que eventualmente la podría utilizar también como sala de ensayo, ósea que tengo que dividir ese cuarto en dos! ... todavía no he construido esa pared divisoria porque he tenido muchas opiniones encontradas al respecto, por ejemplo: donde debe ir el control rom con respecto a la cabina y viceversa , ósea en que parte debo levantar esa pared..... Otros me dicen que la cabina de grabación debe ser mas grande que el control ron y otros me dicen que tiene que ser mas pequeña..... Otro punto donde tengo montones de sugerencias es en como debo construir esa pared, unos me sugieren que rellene con arena de playa lo huecos de los bloques de 10cm antes de pegarlos y que del lado de la cabina de grabación que pegue en toda esa pared Aislante Acústico Textil, después que ponga a una distancia de 2 a 3 cm machimbrado o laminas de yeso... Otros me dice que eso es una locura que las paredes deben ser de draywall rellenas de goma espuma luego una capa de Fibra Aislante y luego una lamina de MDF....... TOTAL ES QUE ME ESTOY VOLVIENDO LOCO.... si me pudieran aconsejar mucho sabría agradecerles ...... mil gracias de ante mano!!!
X
Últimos días
Tratar de contruir en un salon un home estudio
OFERTAS Ver todas
-
-12%K Multimedia iLoud Micro Monitor Pro
-
-20%Moog Messenger
-
Novation FLkey Mini
No es necesario tener pecera, cada vez son más los estudios diseñados en una sola sala, que sirva tanto para grabación como para mezcla. En primer lugar porque si realizas esa división vas a tener que insonorizar, y ya simplemente la puerta y el cristal te va a costar una pasta, aparte también acondicionar acústicamente 2 habitáculos en lugar de 1.
Mi consejo es que te centres en crear una sola sala bien acondicionada y multifuncional, un saludo.
Mi consejo es que te centres en crear una sola sala bien acondicionada y multifuncional, un saludo.
Nuevo post
Regístrate o identifícate para poder postear en este hilo
