Hola a todos,
no se si se corresponde con este apartado, si no es asi disculpas.
en su dia ya hice una pregunta similar, y ahora el poyecto ya esta en marcha.
dispongo de este espacio para crearme mi estudio
[ Imagen externa no disponible ]
me barajo entre tres opciones,
la primera seria dejar todo el espacio para una unica sala.
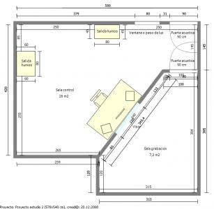
la segunda, que de momento es la que mas me gusta, seria hacer dos salas, una de control y otra de grabacion
[ Imagen externa no disponible ]
y la tercera, seria hacer tres salas, una sala de control, una para grabacion y la otra para voces y bateria
[ Imagen externa no disponible ]
en esta tercera opcion, las salas de grabacion y voces se quedan creo yo que un poco pequeñas.
¿que me aconsejais?
¿a alguien se le ocurre otro diseño?
Un saludo y gracias..... Miguel
no se si se corresponde con este apartado, si no es asi disculpas.
en su dia ya hice una pregunta similar, y ahora el poyecto ya esta en marcha.
dispongo de este espacio para crearme mi estudio
[ Imagen externa no disponible ]
me barajo entre tres opciones,
la primera seria dejar todo el espacio para una unica sala.
la segunda, que de momento es la que mas me gusta, seria hacer dos salas, una de control y otra de grabacion
[ Imagen externa no disponible ]
y la tercera, seria hacer tres salas, una sala de control, una para grabacion y la otra para voces y bateria
[ Imagen externa no disponible ]
en esta tercera opcion, las salas de grabacion y voces se quedan creo yo que un poco pequeñas.
¿que me aconsejais?
¿a alguien se le ocurre otro diseño?
Un saludo y gracias..... Miguel
Responder
Citar


