Buenas hispasonicos,
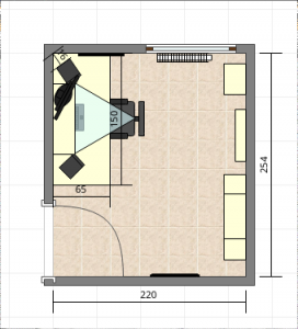
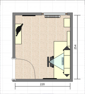
por fin me voy a poner manos a la obra y voy a acondicionar un poco la habitación actual, no he comprado nada y me faltaría poner soportes para la cacharreria. La habitación es pequeña, tiende bastante a un cubo y tampoco tengo mucho margen de maniobra ya que el escritorio es el que es y las estanterías no se pueden cambiar.
Tengo un micro de medición Behringer ecm8000 pero al intentar hacer una medición me he dado cuenta que no funciona... ahora me tocará tirar de garantia, pero en resumén, como no tengo nada para medir por el momento, pensaba en darle unas vueltas a los problemas que me voy a encontrar
Estoy barajando entre cuatro opciones pero siempre me queda una asimetría bastante grave, o por la esquina o por la ventana (cubierta por un store que empieza desde el techo). ¿Que sería mas factible tratar?
Adjunto unas imagenes para que os hagais una idea (los monitores són unos JBL LSR 305).
(La opción 3 iria con unos soportes para los monitores)
Saludos y gracias por vuestro tiempo!
por fin me voy a poner manos a la obra y voy a acondicionar un poco la habitación actual, no he comprado nada y me faltaría poner soportes para la cacharreria. La habitación es pequeña, tiende bastante a un cubo y tampoco tengo mucho margen de maniobra ya que el escritorio es el que es y las estanterías no se pueden cambiar.
Tengo un micro de medición Behringer ecm8000 pero al intentar hacer una medición me he dado cuenta que no funciona... ahora me tocará tirar de garantia, pero en resumén, como no tengo nada para medir por el momento, pensaba en darle unas vueltas a los problemas que me voy a encontrar
Estoy barajando entre cuatro opciones pero siempre me queda una asimetría bastante grave, o por la esquina o por la ventana (cubierta por un store que empieza desde el techo). ¿Que sería mas factible tratar?
Adjunto unas imagenes para que os hagais una idea (los monitores són unos JBL LSR 305).
(La opción 3 iria con unos soportes para los monitores)
Saludos y gracias por vuestro tiempo!
Responder
Citar
