Construcción Estudio.

Ivan
por el 05/01/2007
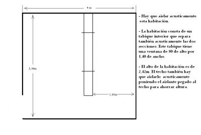
Buenas, estoy construllendo un estudio en el sotano de mi casa y nada más que dispongo de una habitación de 4m x 3m x 2,41m de alto. Mi pregunta es ¿Hay algún tipo de limitación en cuanto a espacio mínimo para que la acustica sea buena? Os adjunto el esquema más o menos de como lo quiero hacer, es el que le pasé a la empresa de aislamientos.


Otra pregunta es, ¿En esta habitación tan pequeña me sobraría con unos monitores de 5''.
Archivos adjuntos ( para descargar)
MY STUDY.JPG
OFERTAS EN TIENDAS Ver todas
  • -70%
    AKG Ara
    19,9 €
    Ver oferta
  • -14%
    Focal Alpha 50 Evo
    222 €
    Ver oferta
  • -15%
    Sequential Prophet REV2-8
    2.299 €
    Ver oferta
SEGUNDA MANO EN MERCASONIC Ver todo
  • Zoom Player 1010, un procesador multiefectos
    50 €
    Ver
  • Amplificador Proel AUP120R 100V 120W
    200 €
    Ver
  • Tarjeta de sonido Motu UltraLite
    210 €
    Ver
¿Tienes equipo que ya no usas? Véndelo en Mercasonic
Ivan
por el 05/01/2007
Al parecer la imagen no se ve muy bien. las medidas son: 4m de largo, 3,30m de ancho. En total se me quedaría una habitación de 2m aprox por 3,30 y una cabina para grabar voces de 1,60m x 3,30.
RIMSHOT
por el 05/01/2007
Así, a bote pronto, se me ocurre que igual te convendría más este tipo de diseño:
RIMSHOT
por el 05/01/2007
De esta forma te quedaría un control de unos 5,9m2 y un estudio de unos 6m2.

El coste se incrementaría, pero a cambio tienes un control con una forma más idónea.
Ivan
por el 05/01/2007
Gracias por todo lo primero, has sido vastante rápido con esquema en 3D y todo, muy currado. La cosa es que creo que por hacer más grande la sala viva me voy a quedar con poco espacio para el control y es el control lo que más voy a usar, y tengo miedo de que luego no suene bién. ¿ La forma que has puesto en el esquema que aparece como de madera sería el control no? Si es así, ¿Es recomendable hacerle esa forma? yo pensaba en ponerle trampa para bajos en las esquinas.

He visto estudio así de pequeños complementarios en estudios más grandes, pero nunca he podido escuchar nada.
GordoMan
por el 05/01/2007
Ostia rimshot, no sabia que eras John Sayers!!!!!!!!!!!!!!!!!!!!!!
1 respuesta directa
RIMSHOT
por el 05/01/2007
DualeDJ, sólo era un ejemplo de diseño más eficaz.

Yo también sería partidario de un control más grande, sobretodo si no vas a grabar baterías.

La forma es aproximada, los ángulos de las paredes frontales sí son exactas (30º).

Las paredes laterales pueden tener distintas inclinaciones, éstas en concreto tienen 84,9º.

El tratamiento acústico es caso aparte.
RIMSHOT
por el 05/01/2007
GordoMan @ 05 Ene 2007 - 02:09 PM escribió:
Ostia rimshot, no sabia que eras John Sayers!!!!!!!!!!!!!!!!!!!!!!


Ya me gustaría a mí tener la mitad de su sapiencia!!
Nuevo post

Regístrate o para poder postear en este hilo

Música
Temas