Buenas a todos, no quería poner el típico post para que me asesoréis sobre cómo acondicionar el estudio, pero un poco es inevitable. Estoy valorando contratar a un profesional para hacerlo cuando me sea posible económicamente así que, además de pediros ayuda (he visto unos cuantos hilos ya) os quería pedir alguna recomendación de alguien que curre bien por Madrid y que no me salga a precio de pro.
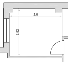
Tengo una habitación de unos 2,5m x 2,8m que quiero aislar todo lo posible, más que nada por los vecinos, y acondicionar después. No me preocupan las paredes tanto como el techo y el suelo, porque dos de ellas dan a la calle y las otras dos a mi casa. Sería para producir música electrónica.
No puedo hacer obra y la habitación ya es pequeña, así que lo que ponga me va a quitar bastante espacio, y en el suelo no puedo ni poner alfombra por la puerta (en principio).
¿Sería viable para un presupuesto amateur aislar la habitación y no preocuparme de molestar a nadie?
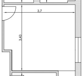
Tengo una habitación de unos 2,5m x 2,8m que quiero aislar todo lo posible, más que nada por los vecinos, y acondicionar después. No me preocupan las paredes tanto como el techo y el suelo, porque dos de ellas dan a la calle y las otras dos a mi casa. Sería para producir música electrónica.
No puedo hacer obra y la habitación ya es pequeña, así que lo que ponga me va a quitar bastante espacio, y en el suelo no puedo ni poner alfombra por la puerta (en principio).
¿Sería viable para un presupuesto amateur aislar la habitación y no preocuparme de molestar a nadie?
Responder
Citar

, pero te agradezco que lo digas porque me puedes ahorrar muchos problemas.