Mejor disposicion de P.A. en un bar-discoteca

jord music
por el 30/08/2024
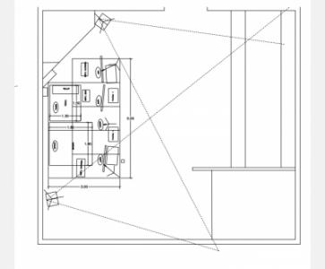
Pues, me gustaria saber cual de las siguientes opciones es mejor para colocar dos pantallas de la P.A. Seria para una sala de bar-discoteca.
La cuña que se ve en la esquina superior izquierda es una cabina de dj, la cual no se puede mover, es fija.

Gracias.
Archivos adjuntos ( para descargar)
Screenshot_2024-08-30-20-10-16-04.jpg
Screenshot_2024-08-30-20-11-08-78.jpg
OFERTAS EN TIENDAS Ver todas
  • -9%
    Behringer DX626 B-Stock
    96 €
    Ver oferta
  • -35%
    Behringer X32 Producer
    969 €
    Ver oferta
  • -31%
    Behringer X-Touch Compact
    222 €
    Ver oferta
SEGUNDA MANO EN MERCASONIC Ver todo
  • Grabación de batería y percusión
    40 €
    Ver
  • AMPLIFICADOR DAS PA-900
    380 €
    Ver
  • Blackmagic DeckLink Micro Recorder PCIe (NUEVA)
    50 €
    Ver
¿Tienes equipo que ya no usas? Véndelo en Mercasonic
jord music
por el 31/08/2024
Se me habia olvidado que se trata para un concierto de una banda de rock, y por la P.A. queremos sacar todos los instrumentos, cada uno en su justa medida, claro està.
kbf fr lf
por el 31/08/2024
por lo que veo no hay espacio de pista, con lo cual casi todos los instrumentos no necesitaran pasar por la pa, exceptuando la voz, y si mucho grita ni eso. y cuidado con los acoples, depediendo de como esta la pa tendras muchos problemas....

saludos....
jord music
por el 31/08/2024
Si, lo se.
Solo pretendemos reforzar un poco bateria y guitarras.
Teclado, saxo y voces es lo que mas volumen tendrà en la PA
Alfredo Martin
por el 12/09/2024
si los altavoces que harán de PA son fijos y no se pueden mover mueve el escenario para que quede centrado respecto a estos lo primero y a partir de ahí valora si tu equipo es suficiente o apropiado para hacer un concierto o no, de momento asi de pronto si no tienes subs no tendrás la sensación de sonido pesado y a partir de ahí ya sabes.

Un saludo.
jord music
por el 12/09/2024
Hay equipo propio de la disco, y nosotros llevamos el nuestro propio también. En el de la disco queríamos sacar la misma mezcla que en le nuestro, pero no sé a que volumen. Más o menos queda centrado sobre las dos opciones que barajo. Estan casi en el techo, enfocados hacía abajo.
1 respuesta directa
jord music
por el 12/09/2024
La superficie de la disco debe estar sobre los 150-180 m².
Nuestro equipo de P.A. no es que sea de lo mejor, pero con la potencia de amplis de guitarra y bajo vamos sobrados. La cosa es hacer que llegue lo mejor posible el sonido general a la gente que no está en primera fila. Me refiero a que se pueda oir con una SPL aceptable y distinguiéndose todos los instrumentos.
2 respuestas directas
Alfredo Martin
por el 12/09/2024
#6 olvídate de esta opción si están en zona donde se solapen y queden relativamente cerca pero no juntos, conseguirás una ensalada de cancelaciones.

#7

mal sobre el papel o bien dependiendo de como lo hagáis pero ya te digo que pasaran cositas. Para empezar si tocáis a nivel de suelo o la gente os tapa los amplificadores o si los ponéis realmente altos vais a broncear a los que estén en primera fila. Siempre es preferible tenerlos a un volumen lógico y que salgáis todo por la PA a hacer esas cosas que insisto en que se pueden hacer pero debes tener experiencia para visualizar los problemas y cambiar de opción si fuera el caso de forma rápida.

Tengo mucha experiencia tanto tocando como sonorizando bandas en lugares aparentemente fáciles en los que luego no se entiende nada como no estés lucido sobre todo si a alguien se le ocurre hacer PAs improvisadas con dos equipos que ni a tiros suenan empatados.

Un saludo.
Alfredo Martin
por el 12/09/2024
#7 lo del SPL aceptable tiene un nivel y es que debéis igualar al menos sino mas bien superar al mas ruidoso de los instrumentos sin control de volumen que es la batería luego si amplificáis esta este es el nivel de referencia para los demás sabiendo que la voz debe estar un poco por encima de la caja (esa diferencia dependerá del genero) Una vez tengáis el sonido de la batería donde queréis sabiendo que la voz puede andar sin problemas es donde teneis que dar volumen a los amplificadores que tienen control de volumen y no al reves.

Una batería acústica parece que suena mucho pero en cuanto todo suene no escucharas el bombo que si o si te tocará meter por la PA y dependiendo de lo que toquéis podeis hacer una toma de la batería más o menos compleja o no. Como te he dicho si el equipo lo permite siempre es mejor mantener un volumen coherente y que salgáis todos por el equipo.

Un saludo.
jord music
por el 12/09/2024
Tocaremos sobre escenario, sobre unos 60 cm de altura. Los altavoces de guitarra los alzaremos con alguna caja de cerveza. Y claro està, no vamos a poner los amplis a todo trapo, sino de acorde al volumen de la bateria y voz.

Lo de sacar algo por el equipo de la disco, creo que no se juntaran y solaparan mucho, pero vamos, que si veo que no funciona bien, pues no lo conectamos
1 respuesta directa
jord music
por el 12/09/2024
Muchas gracias por los consejos
Alfredo Martin
por el 13/09/2024
#10 te puedo decir truquitos que usamos para ajustar problemas o maximizar el rendimiento pero en serio que tu oído te va a engañar y te explico, si metes la señal de la PA por tus altavoces y los de la sala es más que posible que te suene mas alto pero solo parcialmente en las frecuencias donde no haya destrucción, el oído es tan automático o mejor dicho tu cerebro que percibirá el aumento de volumen por encima de las posibles cancelaciones asi que nunca te fíes solo de tu oído o si no tienes el oído muy entrenado no lo hagas. Agárrate cualquier aplicación de medición RTA para móvil y mide con un equipo y con los dos para que veas si hay o no cancelaciones. Si las hubieras poco puedes hacer salvo apagar el menos completo de los dos sistemas.

Un truquillo que usamos pero en el que hay que usar procesador y analizador de doble canal es empatar la PA con amplificadores y batería es tan fácil o difícil como retrasar la PA para que salga a la vez que los amplificadores y batería estando estos en una linea lógica.

Hay mil cositas pero como digo si hay gente de verdad necesitaras dar cera al equipo reforzando sobre todo los instrumentos sordos (voz, teclado si no tiene monitor o amplificador de teclado, vientos (raramente los meterás si son trompetas o saxos) y la parte baja de la batería.

Un saludo.
jord music
por el 13/09/2024
Alfredo Martin escribió:
Un truquillo que usamos pero en el que hay que usar procesador y analizador de doble canal es empatar la PA con amplificadores y batería es tan fácil o difícil como retrasar la PA para que salga a la vez que los amplificadores y batería estando estos en una linea lógica.


Supongo que esto lo dices para que todo suene en "fase"

Alfredo Martin escribió:
Hay mil cositas pero como digo si hay gente de verdad necesitaras dar cera al equipo reforzando sobre todo los instrumentos sordos (voz, teclado si no tiene monitor o amplificador de teclado, vientos (raramente los meterás si son trompetas o saxos) y la parte baja de la batería.


La idea es solo reforzar un poco los sonidos de bateria, amplis de guitarra y saxo en sus frecuencias medias altas, (que supongo que serán las que más se perderán detrás de las primeras líneas de público. Voces y teclado unicamente se reproducirán por nuestra P.A. y son los que en teoria deberían tener algo más de volumen que los otros instrumentos. Los altavoces de la discoteca estarán más omenos en el mismo sitio donde colocaremos nuestros altavoces de nuestra P.A., lo único que los nuestros estarán alzados con trípodes a una altura de 1,80-2,00 m (no recuerdo hasta que altura se pueden subir),y los de la disco están a una altura de unos 3,50-4,00 m, ya que estan casi pegados al techo y orientados un poco hacía abajo. Yo diría que poco desfase podrà haber (haberlo, lo habrá, está claro) però no creo que se note en gran medida, o almenos eso espero. la sala es de forma rectangular, de 12m por 10m aproximadamente.

La verdad es que se agradecen todas las ideas y cosas que aportas y comentas. Muchas gracias
jord music
por el 13/09/2024
Yo creía que la disco era un poco más grande, pero no. Tendrá sobre los 120-130 m².
jord music
por el 16/09/2024
Buenos días.
Al final ya hicimos el concierto. El sonido no fue mal del todo. Con nuestra P.A. nos apañamos bien y pude sonorizar todos los instrumentos. El equipo de la disco solo lo utilizamos de refuerzo y con un mínimo volumen ya que si no, empezaba a acoplarse.
Nuestro trípodes alzaban las cajas de altavoces a un altura de 1,90 m. con lo cual inclinándolos un poco hacía abajo llegaba a la gente de detrás.

Gracias de nuevo por los consejos.
Nuevo post

Regístrate o para poder postear en este hilo

Música
Temas