1 sala o 2 salas de grabación?

  • 1
EsJota
por el 19/09/2007
1 Sala de control + 2 salas de grabación (voz y instrumentos) o únicamente 1 sala de grabación? Tiene el mismo resultado? Estoy construyendo un estudio y no me sobra demasiado espacio y estoy dudando entre hacer 1 o 2 salas de grabación. #-o
OFERTAS EN TIENDAS Ver todas
  • -9%
    Behringer DX626 B-Stock
    96 €
    Ver oferta
  • -13%
    Kawai ES-60
    339 €
    Ver oferta
  • -35%
    Behringer X32 Producer
    969 €
    Ver oferta
SEGUNDA MANO EN MERCASONIC Ver todo
  • Micrófono Universal Audio Sphere LX + REGALOS
    579 €
    Ver
  • Pareja de micrófonos DPA 4188 Cardioide
    1.000 €
    Ver
  • Sintetizador Behringer Deepmind 6 con Estuche Rígido - Buen estado
    450 €
    Ver
¿Tienes equipo que ya no usas? Véndelo en Mercasonic
davidwe
por el 19/09/2007
los instrumentos es mejor darle aire, yo voto por 1 sala de grabacion. Los samples de un piano para ordenador, las mejores condiciones son un piano steinways and son de 270 en una habitacion de 8 metros de alto y 370 metros me parece q tenia el teatro ese totales o algo asi, y el sonido de los teatros.... mejor q eso...nada. yo sin duda q tengo un piano m encantaria poder tirar el tabique de al lado y tener la habitacion d al lado para mi junto con la q tengo. La diferencia es clara en calidad de sonido, al menos en el piano, supongo q en los demas instrumentos, es similar. 2 habitaciones tendras q aislarlas para poder hacer mas grabaciones, pero peores, esto como los yogures, los postres montero cuando estaban buenisimos era cuando no habian empezado a comercializar tanto, se gastaban su pasta, ahora los hacen en serie y son peores. Te va a quedar mas bonito en una sala mas grande, eso sin duda.
fi
por el 19/09/2007
Lo bueno sería saber cuanto espacio tienes...

En principio es mejor darle aire a los instrumentos como dice davidwe, y en unas condiciones óptimas... pero también se puede tener en cuenta la idea de dejar la sala donde grabes practicamente muerta, es decir sin reflexiones... evidentemente el sonido será peor y más artificial, pero, y aquí radica el asunto, a la hora de mezclar ya le puedes ir añadiendo tú la reverb que quieras, entre otras cosas... y si te animas hasta le puedes poner el carácter de una reverb sonando en la iglesia más celestial del universo...

¿Ventajas?: la reverb que grabaras en tus tomas ya no te la puedes cargar, lo grabado grabado está... y sin embargo la reverb que empieces a introducir en la etapa de mezcla la puedes quitar, poner, agrandar, empequeñecer... quizás el interprete se sienta un poco incomodo, no hay problema: le pones un poco de reverb para cuando se escuche por los cascos sin que se registre en la toma.

Bueno esto es más o menos lo que yo he ido entendiendo sobre este tema :roll: .
EsJota
por el 19/09/2007
Tengo un espacio de unos 56m2 pero mal divididos, es una sala alargada de 4 x 14 con lo cual se me hace dificil la separación y tengo que aprovechar todo el ancho asi que las salas van una detrás de otra... al tener tan poco espacio lo mejor es repartir solo una sala de control de unos 24m2 y una sala de grabación de unos 16m2 o a la inversa...
fi
por el 19/09/2007
no sé... si la sala de control es muy pequeña vas a tener muchos problemas para acondicionarla acusticamente y poder escuchar realmente lo que está sonando a la hora de mezclar y no tener una bola de graves y demás... por otro lado si sólo vas a grabar voces o alguna guitarra pues no creo que necesites tanto espacio... pero espera a ver que más te dicen que yo te hablo así bote pronto y me uno a tú pregunta :wink: ... y hay que tener en cuenta también la comodidad...
davidwe
por el 19/09/2007
24m2 esta bien, 16m2 para grabar kizas este bien.
EsJota
por el 19/09/2007
Poniendo 2 salas me quedaria una cosa parecida a eso... Como lo veis? La forma de cada sala la he diseñado un poco a boleo, no se muy bien si darian una buena respuesta o si he hecho algun fallo garrafal :roll: Agradezco mil cualquier suggerencia!!!!!! [-o
Archivos adjuntos ( para descargar)
Modelo01.jpg
davidwe
por el 19/09/2007
la mejor forma para una habitacion para musica es la circular, asi que supongo q a medida q el poliedro mas parecido al circulo va despareciendose al circulo para asemejarse al cuadrado, es peor, un rectangulo es lo q tengo yo en mi habitacion y no estoy contento con ella, me tiene loco, esto q es sobre planos? o sea no esta construido todavia?
miantrox
por el 19/09/2007
Ok saludos, pensaba abrir un hilo nuevo pero este encaja en mi duda. Ok tengo claro las dimensiones con respecto a la grabacion en general, he podido comprobar que en salas muy espaciosas y por supuesto bien tratadas cosas como las baterias suenan sorprendentes, pero tambien he corroborado mediuante el uso de cajas iso que los amplis de guitarras suenan sorprendentes dentro de estos espacios reducidos y acondicionados. Ok, la duda que me viene es con respecto al diseño de una sala para voces, a que se debe el uso de salas de poco espacio y cual seria el tratamiento acustico adecuado para dicha sala?

A los expertos, gracias por las respuestas.
davidwe
por el 19/09/2007
en los teatros hay opera, y suena de muerte, pero la voz de cada uno no tiene tanto registro, o sea es grave o es aguda o eres castrati, grabaciones d discos comerciales se "seca" la voz, se puede hacer en sitio pequeño, acondicionado, porq como t de por cantar a toda pastilla,supongo q para lo q cantan los energumenos comrciales, no es necesario. se q buskabas un experto pero bueno una opinion no esta d mas
miantrox
por el 19/09/2007
Se agradece tu intervencion. Con respecto a lo que mencionas, estoy de acuerdo, pero sigue en pie mi duda con respecto a las interrogantes anteriores, ademas me gustaria saber tambien, cuales serian las medidas ideales en este caso?
EsJota
por el 19/09/2007
Pues no, aun no hay nada construido basicamente pq no se todavia como va la cosa distribuida... supongo que si no hay ninguna queja y todo el mundo lo ve bien.. asi se va a quedar. Os parece bien como está? La mesa supongo que va a ir enfrente del cristal, aunque también tenia pensado que el cristal quedara a mi derecha... eso ya son cosas de interior, en cuanto a la construcción todo bién? Gracias ^^

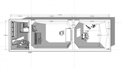
Las medidas aproximadas serian..
Cabina 16m2 aprox (3.58 x 4.45)
Control 22m2 aprox (3.58 x 6.2)

El aislamiento de las salas y grosor de las paredes estan hechos también muy a ojo asi que todo puede ir para arriba o para abajo :?
Archivos adjuntos ( para descargar)
Maqueta01.jpg
miantrox
por el 19/09/2007
Hola EsJota yo te recomendaria que usaras la sala mas grande como sala de grabacion, en el control con 16 mt2 tienes bastantes, no has dicho tampoco las medidas de lato, recuerda que el volumen total es lo mas importante. Una recomendacion mas, tienes que tratar de romper con todas las paralelas de ser posible para evitar frecuencias estacionarias, asi que deberias tratar de angular las paredes o por lo menos una con respecto a su paralela, lo mismo va con el techo y el piso.
EsJota
por el 19/09/2007
Ahi van las medidas.. almenos en la teórica claro.. xD Hay gente que me dice que ponga la sala de control en la grande y otros todo lo contrario!! Romper el paralelismo en las laterales te refieres? buff esque al tener tan poco espacio no se como montarmelo :?
Archivos adjuntos ( para descargar)
medidas.jpg
davidwe
por el 19/09/2007
yo sin duda grababa en la de 24, pero vamos, de calle, porq el sonido va a ser dulce, distante. Lo otro es demasiado cercano, luego te tendras q comer el tarro un poco con la colocacion de los microfonos pero es mejor 24 para grabar. Yo, venia a corroborar todo lo q decia miantrox, todo basado en mi experiencia pianistica, no tengo otra. Yo, como interprete, he hecho interpretaciones magistrales en salas con techos d 8 mtros, y interpretaciones mediocres con techos de 2 metros, siendo el mismo ancho x largo, vamos q sustiyendo el techo ese por el largo, yo tokaria el piano mucho mejor en la sala de 24, q en la sala de 16, te lo aseguro, yo, y Pollini, y Barenboim, influye mucho.
Si es sobre planos personalmente, yo no he tenido la oportunidad de hacerlo, pero en un futuro si tengo oportunindad, no dudaria en acercarme lo mayor posible a un circulo y si no es posible, evita paredes paralelas, q t dejan loco la cabeza. Si puedes poner mucha altura de techo, la habitacion de 16 metros es kojonuda, si es de casi 3 mtros como normalmente, es q te van a salir peores grabaciones, porque van a salir peores interpretaciones. Esto es mi experiencia, y mi gusto, q mucho tiene q ver con el de la mayoria.
Nuevo post

Regístrate o para poder postear en este hilo

Música
Temas