Bueno, ha salido ya en varios hilos, pero creo que estaría bien decirlo aquí en voz alta, saliendo del armario, y afrontando vuestro destino. Para los que queréis trucar el plato de forma que salga a lo frisbee, este es vuestro hilo, je, je... a ver si entre todos damos con la solución. Conste que a mí ni me va ni me viene, porque yo no los quiero trucar, así que si algún plato corre riesgo, el del tito Zitro is going to be that not.
Toda información que pueda proporcionar a partir de ahora, y que hiera la sensibilidad del lector, así como de su querido y VALIOSO plato Technics, no es responsabilidad mía, y toda deducción se basa en mi pobre y escueto intelecto, así que, hala, con un par, melones...
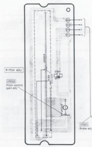
El caso es que he estado mirando el manual de despiece, o como se diga, del plato. Eso unido a que en makination pusieron una foto detallada de la placa, me ha evitado abrir mi platito.
Bueno, al turrón...
Resulta que el potenciómetro azul famoso que tocamos para aumentar el rango de pitch es el VR301, de 2 kOhm. En serie con él hay una resistencia, la R301, de 2k7. Por lo visto, tenía escuchado que hay gente que puentea cierta resistencia, y así consigue mucho rango. El instinto animal me dice que puede ser esa, la R301. Y si la puentean es que, al fin y al cabo, la picha también es nabo... digoooo, que en lugar de 2k7, pasa a tener 0 ohmios de impedancia. Esto me parece un poco pericoloso, además de poco útil si resulta que los rangos de 33 y 45 de pitch se solapan.
Así que supongo que una buena idea sería poner en paralelo con esta resistencia un potenciómetro. Así, bajamos la resistencia que ofrece el conjunto, a la vez que podemos regular dicha resistencia de forma que a 33+8 (8 ficticio) justo termine donde empieza el 45-8 (ficticio).
Supongo que un buen rango sería desde 0 ohmios (lógicamente) hasta unos 5 ó 10 kOhm. Me refiero al rango del potenciómetro. Si queremos más impedancia, para que, en paralelo con la 301 ofrezca una impedancia muy grande, y sea aproximadamente de 2k7, tendríamos que tirar de un potenciómetro algo más grande, yo diría que de unos 30 kOhm. Pero, vamos, podríamos ir probando.
Por ahora, vendría muy bien saber si alguien consigue subir el rango de pitch simplemente puenteando, con un cable, la resistencia R301. Es decir, conectar un cable entre sus patillas, para que por esta resistencia no pase corriente. No hace falta soldar, ni nada. Así, en principio, si todo va bien, tendríamos ya trucadísimo el plato, y podríamos ajustar el rango de pitch con el pote azul, pero prefiero primero saber si estamos hablando de la resistencia correcta.
¿Alguien podría hacernos ese favor? Pensad en el poki a 165 bpms... oooooh, qué delicia... :rolleyes: (Oye, que lo hago por vosotros, eh...)
Un saludo, y espero noticias del campo de batalla.
Cambio, y corto. Muy corto.
PD: transcribiré esta info al subforo hardware del Tentáculo, más que nada, para ver si así obtenemos resultados más rápido (y a ver si alguien puentea la maldita resistencia yaaaaa). Espero que nadie se ofenda.
LADRILLO PAZITRONADO POR CONSTRUCCIONES ORTIZ
Construimos tu vida
Toda información que pueda proporcionar a partir de ahora, y que hiera la sensibilidad del lector, así como de su querido y VALIOSO plato Technics, no es responsabilidad mía, y toda deducción se basa en mi pobre y escueto intelecto, así que, hala, con un par, melones...
El caso es que he estado mirando el manual de despiece, o como se diga, del plato. Eso unido a que en makination pusieron una foto detallada de la placa, me ha evitado abrir mi platito.
Bueno, al turrón...
Resulta que el potenciómetro azul famoso que tocamos para aumentar el rango de pitch es el VR301, de 2 kOhm. En serie con él hay una resistencia, la R301, de 2k7. Por lo visto, tenía escuchado que hay gente que puentea cierta resistencia, y así consigue mucho rango. El instinto animal me dice que puede ser esa, la R301. Y si la puentean es que, al fin y al cabo, la picha también es nabo... digoooo, que en lugar de 2k7, pasa a tener 0 ohmios de impedancia. Esto me parece un poco pericoloso, además de poco útil si resulta que los rangos de 33 y 45 de pitch se solapan.
Así que supongo que una buena idea sería poner en paralelo con esta resistencia un potenciómetro. Así, bajamos la resistencia que ofrece el conjunto, a la vez que podemos regular dicha resistencia de forma que a 33+8 (8 ficticio) justo termine donde empieza el 45-8 (ficticio).
Supongo que un buen rango sería desde 0 ohmios (lógicamente) hasta unos 5 ó 10 kOhm. Me refiero al rango del potenciómetro. Si queremos más impedancia, para que, en paralelo con la 301 ofrezca una impedancia muy grande, y sea aproximadamente de 2k7, tendríamos que tirar de un potenciómetro algo más grande, yo diría que de unos 30 kOhm. Pero, vamos, podríamos ir probando.
Por ahora, vendría muy bien saber si alguien consigue subir el rango de pitch simplemente puenteando, con un cable, la resistencia R301. Es decir, conectar un cable entre sus patillas, para que por esta resistencia no pase corriente. No hace falta soldar, ni nada. Así, en principio, si todo va bien, tendríamos ya trucadísimo el plato, y podríamos ajustar el rango de pitch con el pote azul, pero prefiero primero saber si estamos hablando de la resistencia correcta.
¿Alguien podría hacernos ese favor? Pensad en el poki a 165 bpms... oooooh, qué delicia... :rolleyes: (Oye, que lo hago por vosotros, eh...)
Un saludo, y espero noticias del campo de batalla.
Cambio, y corto. Muy corto.
PD: transcribiré esta info al subforo hardware del Tentáculo, más que nada, para ver si así obtenemos resultados más rápido (y a ver si alguien puentea la maldita resistencia yaaaaa). Espero que nadie se ofenda.
LADRILLO PAZITRONADO POR CONSTRUCCIONES ORTIZ
Construimos tu vida
Responder
Citar
