Buenas, estaba pensando en comprarme unos monitores decentes (200-300€) porque hasta ahora usaba unos creative gigaworks t20 y ya hace un tiempo que creo que necesito algo mejor. Ahora bien, lo mio es una sala de ensayo, grabación y mezcla todo en uno y claro, me preguntaba si al estar casi sin tratar acústicamente me iba a servir de poco la inversión.
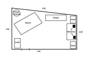
Las paredes son de pladur (detrás va lana de roca) y están descubiertas, no tengo más que un par de posters. El techo son placas de escayola de esa con agujeros y lana de roca dentro y luego tengo una trampa de graves home made, un cilindro de esos que parece la columna de hércules. En general la acústica de la sala no es mala, al tocar, los platos de la batería me resultan totalmente excesivos, te dejan casi sordo. Por lo demás creo que bien.
Os dejo un plano de la sala para que lo veáis claro y espero algún consejo, sobre tratamiento acústico, colocación de elementos, monitores, lo que sea. No tenía claro dónde poner el post, espero que esté bien aquí.
Saludos!
Las paredes son de pladur (detrás va lana de roca) y están descubiertas, no tengo más que un par de posters. El techo son placas de escayola de esa con agujeros y lana de roca dentro y luego tengo una trampa de graves home made, un cilindro de esos que parece la columna de hércules. En general la acústica de la sala no es mala, al tocar, los platos de la batería me resultan totalmente excesivos, te dejan casi sordo. Por lo demás creo que bien.
Os dejo un plano de la sala para que lo veáis claro y espero algún consejo, sobre tratamiento acústico, colocación de elementos, monitores, lo que sea. No tenía claro dónde poner el post, espero que esté bien aquí.
Saludos!
Responder
Citar
