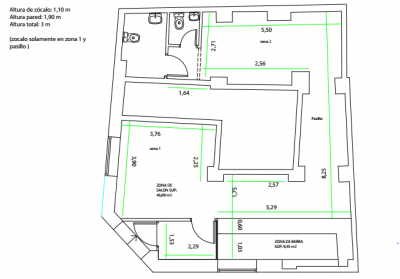
Estamos montando el sistema sonoro de un local. La licencia que tenemos nos permite tener un equipo de sonido que no supere los 75 dB a un metro del altavoz. Para evitar tener que poner un limitador estaba pensando en colocar un sistema cuyo máximo no superase los 75-78 db a un metro, obviamente busco la mejor calidad de sonido posible. El local es de 90 mt2 aproximadamente distribuido en 2 salones y un pasillo. Tengo un presupuesto de 500€ aproximadamente.
Gracias de antemano por las respuestas
Gracias de antemano por las respuestas
Responder
Citar
