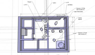
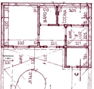
Y esta claro que se complica porque lleva mas remodelacion ya que los planos que anteriormente os subi eran de como casi el lugar esta ahora pero esto implica casi tirar paredes abajo muchas y hablar con la familia para que me habiliten un espacio nuevo que es el lavadero pero ya tiene otra onda mas pro este disenio... Por favor tirenme algun comentario antes que empiece con el Rivotril y esas cosas.... 
Salud!
Tungo
Salud!
Tungo
Responder
Citar
