Cabina para Humilde Estudio de Grabacion

galvano
por el 19/01/2007
- Yo en tu lugar haría solo sala de control y sala de grabación (siempre que ya tengas un cuarto de aseo para tus clientes).

Una pared de 3 metros de longitud para separar un espacio en dos con un espesor de 30 cm , te quita casi un metro cuadrado, suma el precio de un par de puertas mas un doble crital. No se si con todas estas medidas aun te transpasaría el ruido de la batería y se colaría por el condenser mic del cantante, no tengo la experiencia para saberlo.

Por ejemplo, un control room de 25 metros cuadrados con unas medidas de 5m X 5m, se podría quedar en 20 metros una vez aplicado el aislamiento y el acondicionamiento. No soy experto en el tema, pero no sería ninguna locura que incluso descendiese de los 20 metros cuadrados.

Ánimo y haztelo lo mejor posible dentro de tus posibilidades.



- Un saludo.
OFERTAS EN TIENDAS Ver todas
  • -14%
    SPL Goldmike MK2 B-Stock
    845 €
    Ver oferta
  • -9%
    Behringer DX626 B-Stock
    96 €
    Ver oferta
  • -26%
    Moog Messenger
    699 €
    Ver oferta
SEGUNDA MANO EN MERCASONIC Ver todo
  • Crown XLS 1002
    270 €
    Ver
  • GYRATEC XIV Parallel Passive Equalizer- GYRAF AUDIO
    2.500 €
    Ver
  • Soundcraft Si Impact + Flight case
    1.300 €
    Ver
¿Tienes equipo que ya no usas? Véndelo en Mercasonic
satunga
por el 19/01/2007
Patie la sircunstancia pa mas delante... me doy una semana para remodelar el concepto... completarlo... y que se comience todo... algunas cosas ya las pense... creo que conservare la forma asimetrica... y vere luego si me armo un juego de paneles reflejantes que, a la hora de mezclar, se pueda ajustar para mejorar la simetria en referencia a la parte oblicua lateral Left... y si se graba.. pues se quita dicho panel y se prioriza el espacio y ya sta...

Enfin... gracias por la atencion sres... y sera hasta la proxima...
Salud!
Tungo
satunga
por el 20/01/2007
UF... dando vueltas en la cama pensando que voy a hacer alli en el fondillo pues... me da vueltas en la cabeza tambien el futuro monitoreo y me habia decidido por unos Krk Rokit 8`... pero me recomiendan por las dimensiones de la cabina que cambie a 5`? Digo porque para referencia de graves por mas burda que sea, tengo los Technics de 15... pero mucho espacio no tengo y quizas no los pueda separar de la pared lo necesario por lo cual quizas de 8 termine siendo muy problematico?


Otra pregunta mas aqui el tungalin colorado!
Salud gente!
Tungo
satunga
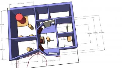
por el 22/01/2007
Hola Hola!
Pues aqui os dejo otra pulida del plano... pues... aqui ya he resuelto la simetria absoluta de la cabina, el ambiente entre cabina y sala 1... doble puerta... solo me falto agregar las ventanas pero es que en 4 horas me levanto para ir a trabajar :(

Salud y a criticad!
Tungo
Archivos adjuntos ( para descargar)
bus01.jpg
bus.jpg
satunga
por el 22/01/2007
Puede que haya llegado a un limite... mas alla de la tolerancia de vosotros... pero no me permite subir mas jpgs :(

En fin... alli tienen algo... fijaos...!
Salud!
Tungo
Eduardoc
por el 23/01/2007
Yo me inclino en el caso de usar de control room esa sala, no hacer tan radical las paredes derecha he izquierda. De todas maneras yo usaría la sala grande como control room....
satunga
por el 23/01/2007
Disculpad... pero porque preferis tanta insonorizacion para la cabina? o es por el tamanio? porque como os decia... es critica la molestia que pueda generar en el barrio y la sala tiene suelo hueco de madera... ya tiene toda la estrictura de maderos y demaces... osea... me choco con el concepto que para ustedes les suena tan natural el resignar sala con control y a mi me parece inconcientemente inclusive, muy delicado el asunto de la bateria sonando a pleno... aparte mas alla de todo planteo que tambien se pueda ensayar...
y las cajas potenciadas estan ahi donde la bateria... osea es necesario que sea espacioso...

en fin... entiendo el criterio de tu opinion pero no la razon que lo fundamenta y no encuentro el porque... podrias clarificarme un poco la sircunstancia? porque pense que habia llegado al apogeo de mi disenio si no fuera porque con un angulo entre punta y punta de la pared obclicua... ayudaria a aumentar un poco el espacio de la cabina propiamente dicha...

Salud!
Y una vez mas grazie!

Tungo.
satunga
por el 23/01/2007
Algo que me olvidaba... es que todas las paredes de la sala actual menos la uqe daria con la cabina... son de 30 cm... si muevo la sala de ahi... tendre que hacer dobles paredes en todos lados para moverla de ahi la sala...

Aparte la cabina no tendra nunca tanto volumen como la sala de bateria y alli es donde prevalesco el concepto de condicionar en base a la forma y la sala de la bateria con material osea lana de vidrio y durlock...
Quizas si en la sala de bateria le agregue un par de pequenios angulos... para que no sea cuadrada pero es mas simple...

vuelvo a lo mismo disculpades!
Salud! y felizes grabatinas!
Tungo
satunga
por el 24/01/2007
a ver q onda ahora?
este es el final final...

salud!
tungo.
Archivos adjuntos ( para descargar)
b-12 name .jpg
satunga
por el 24/01/2007
no quiero romper y hacer todo porque necesito que haya banio y hasta cocina tambien porque necesito poder pasar periodos alli sin que falten las cosas basicas... y arriba la idea es construir para filmar... e integrar una isla de edicion junto con la mezcla sonora debajo... Por eso el espacio esta un poco justo... no es pro... pero la idea es cuidar siertos detalles donde se puede generar un buen nivel de resultado con el menor menor costo :)
Esperemos que salga bien...


lo de quitar la tarima no es mala
pero me pareciera como que mejora la sonoridad en un ensayo... de la bateria al tenerla un poco.. 10 cm... mas cerca del oido :)


en fin... la separacion del suelo creo que tambien era importante.. y la tarima tiene sus materiales para absorber las vibraciones del bombo...

uf... por hoy creo que ya esta bien...
voy a dejar de pensar en funcion al sonido porque ya creo que soy una honda senoidal :)

Salud gente bonita!
Tungo
satunga
por el 24/01/2007
Sres... la pregunta que le da valor e importancia al foro que inicie... y es la siguiente... dicha forma en el control room... oblicua y simetrica en los laterales... mejoraria significativamente la escucha en ese recinto a diferencia del rectangular?

Pros y contras para poder comenzar a construir y es que me planteo lo siguiente...


Control rectangular... mucho mas simple de construir y menos posibilidad de error
Control Oblicuo... en teoria, mejora sonora... pero complicado de construir y perdida de espacio...


Favor de sacarme de esta duda...
Me refiero al ultimo plano el B12Name algo asi...

Salud seniores!
Tungo.
Eduardoc
por el 24/01/2007
El hecho de que las pareces no esten paralelas pero sí simétricas ayuda, pero no es a ojo, el último plano lo veo bien pero a ojo, el diseño tiene que hacerlo alguien especializado en acústica a ser posible....

En principio lo que le veo el control room es que está muy ancho y es poco profundo, me inclinaría por hacer a lo largo y no a lo ancho, pero como ya he comentado usaría la sala grande para el control room y no la que tienes en el plano ya que 2,56 de profundidad lo veo muy poco espacio.

Lo de la insonorización es relativo, si vas a usar mucho volumen o un subwoofer también en el control room pueden salir muchos graves si hay vecinos pegados.
satunga
por el 26/01/2007
Partiendo de la base que la cabina asi quedara.. no habra alguna solucion en cuanto a materiales tanto resonadores, como difusores, como bass traps... o algo como para homogenizar lo necesario para la perturbadora bola que se generara a espaldas del operador?

Quizas algo se puede hacer... Salud gente!
feliz Fin de Semana para tutto il grupo!
Tungo.
satunga
por el 29/01/2007
Difusores, WALKER o RFZ, trampeo de graves?

Nada para este lado? Quizas se puede afinar el ambiente final a una buena acustica...:)

Todos por un Control Room!

Vamos que ya falta poco!


Salud Sres!
Tungo
satunga
por el 05/02/2007
Ahi?
Archivos adjuntos ( para descargar)
6.jpg
Nuevo post

Regístrate o para poder postear en este hilo

Música
Temas