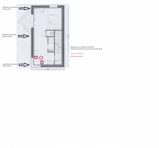
Buenas, veréis he montado un pequeño estudio en la habitación de la fotografía, es bastante amplia aunque el problema es que tengo los altavoces muy cerca de la cara y no se pueden mover de la posición en la que están, ya que en la mesa en la que están no se pueden mover.
Mi duda es que estoy ahorrando dinero para unos monitores de estudio, y me gustaría que me aconsejarais cuales comprarme con las características que tiene la habitación y el hecho de que tenga los monitores tan cerca, quiero comprarme unos más bien profesionales para tener unos buenos monitores. Yo actualmente tengo unos KRK RP5 G3, estoy contento con ellos y he estado mirando unos KRK VXT 8, aunque no sé si el cono de este es muy grande teniendo en cuenta que tengo los monitores a medio metro de la cara, o unos Genelec de la serie 8000 que ronden el precio de los KRK, o si me aconsejáis alguno comentármelo por favor, los uso tanto para producción como para mezcla, y también estoy mirando tema masterización.
Otra duda es si pensáis que tenga que aplicarle algún tratamiento acústico a la sala, aunque teniendo en cuenta que tengo los monitores tan cerca no creo que influya mucho la sala, lo único que me preocupa es el monitor que enfoca hacia la puerta, que no se hasta que punto reflejará el sonido hacia mi posición.
Gracias de antemano, un saludo!
Mi duda es que estoy ahorrando dinero para unos monitores de estudio, y me gustaría que me aconsejarais cuales comprarme con las características que tiene la habitación y el hecho de que tenga los monitores tan cerca, quiero comprarme unos más bien profesionales para tener unos buenos monitores. Yo actualmente tengo unos KRK RP5 G3, estoy contento con ellos y he estado mirando unos KRK VXT 8, aunque no sé si el cono de este es muy grande teniendo en cuenta que tengo los monitores a medio metro de la cara, o unos Genelec de la serie 8000 que ronden el precio de los KRK, o si me aconsejáis alguno comentármelo por favor, los uso tanto para producción como para mezcla, y también estoy mirando tema masterización.
Otra duda es si pensáis que tenga que aplicarle algún tratamiento acústico a la sala, aunque teniendo en cuenta que tengo los monitores tan cerca no creo que influya mucho la sala, lo único que me preocupa es el monitor que enfoca hacia la puerta, que no se hasta que punto reflejará el sonido hacia mi posición.
Gracias de antemano, un saludo!
Responder
Citar
