Duda Monitores

danivicen
por el 28/10/2015
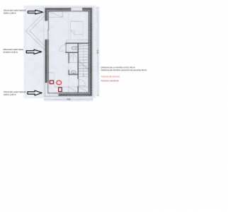
Buenas, veréis estoy ahorrando para comprarme unos monitores y quiero cogerme unos que sean más bien profesionales. Los quiero usar para tanto producción como mezcla, y puede que en un futuro para mastering, por lo que necesito un sonido plano. Ahora mismo tengo unos KRK RP5 G3 y estoy bastante contento con ellos, pero los conos son muy pequeños y me limitan mucho. Estoy interesado en los KRK VXT, lo que no sé es si coger unos VXT 6 o 8, o también estoy interesado en los Genelec de la serie 8000, pero también me gustaría saber vuestras opiniones. La cosa es que estoy muy interesado en los VXT porque en una página que se llama equipboard puedes ver el equipamiento de muchos DJs y productores, y muchos de mis productores favoritos tienen los VXT, pero claro no sé hasta que punto mezclarán sus canciones. Aporto un plano de mi estudio para que veáis el tamaño de la habitación, ya que es bastante grande, y el hecho de que tengo los monitores muy cerca de la cara, por lo que no tengo muy claro si merece la pena comprar unos monitores muy grandes.

Gracias de antemano, saludos!
Archivos adjuntos ( para descargar)
Habitacion.png
OFERTAS EN TIENDAS Ver todas
  • Focusrite Scarlett 2i2 3rd Gen
    118 €
    Ver oferta
  • -13%
    Kawai ES-60
    339 €
    Ver oferta
  • -31%
    Behringer X-Touch Compact
    222 €
    Ver oferta
SEGUNDA MANO EN MERCASONIC Ver todo
  • Telefunken TF47 – Micrófono de válvulas
    1.600 €
    Ver
  • Vendo controlador Solid State Logic SSL UF8
    750 €
    Ver
  • Sintetizador Behringer Deepmind 6 con Estuche Rígido - Buen estado
    450 €
    Ver
¿Tienes equipo que ya no usas? Véndelo en Mercasonic
holaquehay
por el 28/10/2015
Hola, yo tambien estoy en una situacion parecida, estoy casi decidido entre los adam a5x o los dynaudio bm compact mk3, creo que para una habitacion de entre 10 y 20m2 es suficiente con que tengan el woofer de 5" aprox. Para que funcionen bien la habitacion deberia estar mas o menos tratada acusticamente y creo que los monitores tampoco deberian de estar colocados en la esquina, ni tan cerca de la pared si tienen el bass reflex detras. Espero haberte ayudado algo, tambien agradeceria sin alguien conoce los monitores que he dicho antes y me podria dar su opinion. que tengais un buen dia, saludos.
1 respuesta directa
Cristian Cervera
por el 28/10/2015
Ayudar sobre los monitores no puedo pero si puedo abrirte un poco los ojos:
¿De verdad le vas a sacar tanto partido a los VXT? ¿Te merece la pena cambiar los Krk por otros? Sencillamente porque hoy en dia todo el mundo con unos krk rokit de 5" o unos Maudio bx5, o tirando un poco mas el precio unos yamaha, puede hacer maravillas y no te dejas tanto dinero. Es mas, gente solo con auriculares masteriza mejor que gente con grandes estudios para mi gusto.

No pretendo influir solo que te pienses el MALGASTAR el dinero por un capricho y mas aun si ya tienes unos monitores...

Piensalo bien porque no hay tanta diferencia entre los krk "de toda la vida" a los VXT... Son modas y pagas marca para aumentar un poco (muy poco, algo casi imposible de percibir) las caracteristicas.
Hablo como aficionado que se las ve p**** para comprar cualquier instrumento o cualquier juguete para el estudio...

Consejo, No malgastes el dinero e inviertelo en otras cosas!! XD
1 respuesta directa
holaquehay
por el 28/10/2015
Hola, si de verdad les vas a dar uso, a mi no me parece malgastar el dinero, no se si sera mucha la diferencia entre esos modelos de krk pero pagar por unos genelec, adam, dynaudio etc... no me parece malgastar, sino una buena inversion, creo que los monitores son lo mas importante, saludos.
1 respuesta directa
danivicen
por el 28/10/2015
#2 La cosa es que la habitación en la que está el estudio tiene 45 m2, y sin tener en cuenta que el techo llega a tener 4 metros de alto, es una habitación enorme, y el problema es que de la manera en que está construida no tengo un sitio aparte de la esquina donde están, y la mesa en donde están no se puede mover. El tratamiento acústico no se si es necesario, porque tengo los altavoces muy cerca y no se hasta que punto influirá, y teniendo en cuenta lo grande e irregular de la habitación no sé hasta que punto influirá

#3 Los KRK que tengo ahora son la gama más baja, y realmente noto una deficiencia en los bajos, porque con el cono que tienen tan pequeños casi no se oyen. Yo considero que los monitores es de lo más importante, es lo que te permite escuchar lo que haces, y prefiero ahorrar y invertir en unos buenos monitores que comprarme unos más baratos y darme cuenta más tarde de que necesitaría algo mejor, pero eso sí, tengo que elegir bien y el problema es que en mi zona no hay muchas por no decir ninguna tienda con monitores para probar, por lo que tengo que elegir un poco a ciegas, así que si me aconsejáis un poco cuales veis mejores estaré muy agradecido y cuando vea unos cuantos que me interesen, ya me daré un viajecito para verlos en alguna tienda.
Cristian Cervera
por el 28/10/2015
#4 Claro, si le vas a sacar partido ve de cabeza, pero no te encapriches con ellos por "Ser mas guay y que flipen tus amigos". El mejor consejo que te puedo dar es intentar probarlos y si de verdad te gustan y tienes la pasta a por ellos pero si no vives de esto hay que sacar el maximo partido al minimo precio.
Siento el "quitarte la ilusion" pero veo que teniendo unos ya bastante en condiciones y que funciona para que cambiarlo ;)

Piensalo bien porque estos caprichos suelen ser de unos dias porque has visto unos videos o has leido sobre ellos super bien y te han gustado. Me ha pasado y a los dos dias no me acordaba de el!! JAJAJAJA
holaquehay
por el 28/10/2015
Tienes razon, no me habia fijado en l tamaño, es muy grande, no tengo mucha idea pero tal vez haga efecto si pones una tela gruesa desde lo que parece el baño hasta la pared, antes de que empize el techo alto, puede que asi no se pierda tanto el sonido, los adam a7x por ejemplo el bass reflex lo tienen delante y los puedes acercar mucho a la pared de detras.
powerstudios
por el 29/10/2015
Dynaudio BM6 o focal...olvida krk.
saludos.
holaquehay
por el 29/10/2015
Hola, los dynaudio bm5 mk3 que os parecen? tambien son de 7"
Seran demasiado para una habitacion de 15m2 y altura de 2,5m aprox? seria suficiente con los bm compact mk3 de 5,7"? saludos.
Cristian Cervera
por el 29/10/2015
para una habitacion de 15m2 los bx5 te sobrarán!!! Y sobre todo ahorras!!
holaquehay
por el 29/10/2015
dices bx5 de m-audio?
Cristian Cervera
por el 29/10/2015
#11 si!! Perdon por no haber puesto la marca. Mi habitacion es de esas dimensiones y no puedo ponerlos mas allá de un cuarto porque es demasiado sonido...
holaquehay
por el 29/10/2015
ya pero no me refiero solo al volumen que den sino a que tengan un sonido plano, bien definido y con un buen rango de frecuencias y sin colorear
Nuevo post

Regístrate o para poder postear en este hilo

Música
Temas