Muy buenas compañeros. Pues me he propuesto finalmente acondicionar mi habitación para que sea tanto para grabación como para mezcla.
La primera decisión que he tomado es que voy a dejar la habitación bastante seca ya que como lo voy a usar para ambos propósitos, no quiero complicarme demasiado... No estoy lejos de conseguirlo, los agudos están bastante controlados, el problema son los graves (imagino como casi siempre)... Pero tengo un problema que creo que es más grave... Por cuestiones de ubicación de la puerta, armarios empotrados, etc, la mesa de control no la puedo centrar en una de las paredes cortas del rectángulo, lo cual implica que uno de los altavoces está mucho más cerca de la pared lateral que el otro... (aprox. tres veces más cerca), y por si fuera poco, dicha pared tiene una ventana bastante grande... Todo esto desemboca en que lo que sería el centro del estéreo (voz, bajo, bombo...) se escucha como si estuviese paneado a la izquierda un 50% aprox...
Mi primera duda es cómo puedo solucionar esto? Podría solucionarlo con un dsp y REW/Sonarworks?
Os adjunto un croquis súper mal hecho con el Paint, pero creo que vale para hacerse una idea... Pronto subiré fotos de la sala.
Saludos y mil gracias de antemano.
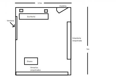
La primera decisión que he tomado es que voy a dejar la habitación bastante seca ya que como lo voy a usar para ambos propósitos, no quiero complicarme demasiado... No estoy lejos de conseguirlo, los agudos están bastante controlados, el problema son los graves (imagino como casi siempre)... Pero tengo un problema que creo que es más grave... Por cuestiones de ubicación de la puerta, armarios empotrados, etc, la mesa de control no la puedo centrar en una de las paredes cortas del rectángulo, lo cual implica que uno de los altavoces está mucho más cerca de la pared lateral que el otro... (aprox. tres veces más cerca), y por si fuera poco, dicha pared tiene una ventana bastante grande... Todo esto desemboca en que lo que sería el centro del estéreo (voz, bajo, bombo...) se escucha como si estuviese paneado a la izquierda un 50% aprox...
Mi primera duda es cómo puedo solucionar esto? Podría solucionarlo con un dsp y REW/Sonarworks?
Os adjunto un croquis súper mal hecho con el Paint, pero creo que vale para hacerse una idea... Pronto subiré fotos de la sala.
Saludos y mil gracias de antemano.
Responder
Citar
