Buenas a todos!
Por fin tengo mi espacio para construirme un sitio donde grabar mis cosillas.La idea es acondicionar una zona que me sirva para ensayar y de estudio de grabación, acondicionado acusticamente e insonorizado.
Despues de empaparme foros en todos los idiomas, estoy mucho mas liado que cuando empecé a darle vueltas a la idea hace 5 años.
El local del que dispongo es un trozo garaje rodeado de jardin (debajo del suelo hay tierra, pero encima del local hay vivienda)
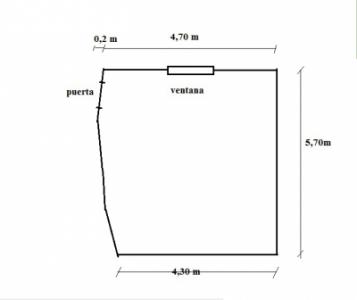
La altura es fija 2,30m.Dispongo de un espacio rectangular de 5,70 x 4,50.Una de las paredes ya la contrui en su dia con inclinación para evitar paralelismos.
En primer lugar antes del acondicionamiento me ocuparé de la insonorización, pero hay ciertas cuestiones como las dimensiones finales que ya hay que tenerlas en cuenta para el resultado final.
Que hariais vosotros con este espacio? Una o dos salas? Yo tengo pensado hacer una solo que sirva para grabar y mezclar.. tendría que apañarme para insonorizar el ordenador, pero me parece mas comodo por si lo uso de local de ensayo con los colegas, no tener una sala enana. Despues de todo si Carlos Raya usa una sala para grabar los discos de M-clan y Fito.. no sera tan mala idea no? https://www.youtube.com/watch?v=fJoww2etSFo
Que opinais de las dimensiones iniciales? He comprobado en un calculador de modos online y parece que no son malas medidas... aunque no termino de entenderlo. Conoceis algun ratio al que deba atenerme variando alguna medida? Hay que tener en cuenta que la insonorizacion me bajará el techo aun más... Que tendre que poner mucho absorbente...
http://www.bobgolds.com/Mode/RoomModes.htm
Para insonorizar creo que tendré que construir una habitación dentro de esta que tengo ya, por lo que en principio la pared inclinada que tengo no me sirve de mucho...
La ventana estoy pensando en poner doble o triple espero que sea suficiente.
Otra duda que me surge es si rellenar el techo que tengo (bovedillas) agujereandolas y rellenando con celulosa para ir ganando espacio y que el techo no tenga que caer mucho pues es bastante bajo. (No quiero usar lana de roca por los problemas de salud que pudiera ocasionar. He leido que la celulosa es similar). Sera suficiente con unos 15 cm? Quiero bajar el techo lo minimo.
Os ire informando, cualquier cosa que se os ocurra os agradecere la información pues estoy muy perdido.
Adjunto un croquis, medidas de la planta y foto del techo. (es lo que mas me preocupa de la insonorización).
Gracias de antemano!!
Por fin tengo mi espacio para construirme un sitio donde grabar mis cosillas.La idea es acondicionar una zona que me sirva para ensayar y de estudio de grabación, acondicionado acusticamente e insonorizado.
Despues de empaparme foros en todos los idiomas, estoy mucho mas liado que cuando empecé a darle vueltas a la idea hace 5 años.
El local del que dispongo es un trozo garaje rodeado de jardin (debajo del suelo hay tierra, pero encima del local hay vivienda)
La altura es fija 2,30m.Dispongo de un espacio rectangular de 5,70 x 4,50.Una de las paredes ya la contrui en su dia con inclinación para evitar paralelismos.
En primer lugar antes del acondicionamiento me ocuparé de la insonorización, pero hay ciertas cuestiones como las dimensiones finales que ya hay que tenerlas en cuenta para el resultado final.
Que hariais vosotros con este espacio? Una o dos salas? Yo tengo pensado hacer una solo que sirva para grabar y mezclar.. tendría que apañarme para insonorizar el ordenador, pero me parece mas comodo por si lo uso de local de ensayo con los colegas, no tener una sala enana. Despues de todo si Carlos Raya usa una sala para grabar los discos de M-clan y Fito.. no sera tan mala idea no? https://www.youtube.com/watch?v=fJoww2etSFo
Que opinais de las dimensiones iniciales? He comprobado en un calculador de modos online y parece que no son malas medidas... aunque no termino de entenderlo. Conoceis algun ratio al que deba atenerme variando alguna medida? Hay que tener en cuenta que la insonorizacion me bajará el techo aun más... Que tendre que poner mucho absorbente...
http://www.bobgolds.com/Mode/RoomModes.htm
Para insonorizar creo que tendré que construir una habitación dentro de esta que tengo ya, por lo que en principio la pared inclinada que tengo no me sirve de mucho...
La ventana estoy pensando en poner doble o triple espero que sea suficiente.
Otra duda que me surge es si rellenar el techo que tengo (bovedillas) agujereandolas y rellenando con celulosa para ir ganando espacio y que el techo no tenga que caer mucho pues es bastante bajo. (No quiero usar lana de roca por los problemas de salud que pudiera ocasionar. He leido que la celulosa es similar). Sera suficiente con unos 15 cm? Quiero bajar el techo lo minimo.
Os ire informando, cualquier cosa que se os ocurra os agradecere la información pues estoy muy perdido.
Adjunto un croquis, medidas de la planta y foto del techo. (es lo que mas me preocupa de la insonorización).
Gracias de antemano!!
Responder
Citar
