Hola a todos, y muchas gracias de antemano por vuestra ayuda.
Estoy comenzando a acondicionar mi sala de control y antes de empezar se me presentan algunos problemas.
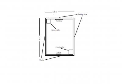
-Dos de los tabiques adyacentes son se ladrillo vista y los otros dos de pladur.
-Dos de las cuatro esquinas (opuestas diagonalmente tienen un "pilar". Uno es un auténtico pilar de ladrillo. El otro tiene la misma forma pero es un cajón hueco de pladur. Por su interior pasa una tubería.
La pregunta es: En qué medida afactería la diferencia de materiales de ambos lados? Descompensaría la imagen stereo? Generaría otro tipo de problemas? Los dos pilares también serían un problema? Como podría corregir todo esto?
Muchas gracias, y un saludo!
Estoy comenzando a acondicionar mi sala de control y antes de empezar se me presentan algunos problemas.
-Dos de los tabiques adyacentes son se ladrillo vista y los otros dos de pladur.
-Dos de las cuatro esquinas (opuestas diagonalmente tienen un "pilar". Uno es un auténtico pilar de ladrillo. El otro tiene la misma forma pero es un cajón hueco de pladur. Por su interior pasa una tubería.
La pregunta es: En qué medida afactería la diferencia de materiales de ambos lados? Descompensaría la imagen stereo? Generaría otro tipo de problemas? Los dos pilares también serían un problema? Como podría corregir todo esto?
Muchas gracias, y un saludo!
Responder
Citar
